- ローンシミュレーション現在の店頭基準金利は2.475%
-
借入期間4180万円/
金利%/年ローン- 毎月返済額
- 円
頭金0円でボーナス払いなしの場合の金額です。
また、お客様のご条件により金利の優遇幅が変動する場合があります。返済例は全額ローン(ボーナス返済0円)、元利金等支払、借入期間35年、変動金利(金利優遇適用後)の0.675%にて計算(現在2020年07月適用)
お気に入り
物件探しに便利なお気に入り機能は会員登録が必要です。
会員登録はこちら
PRICE
DOWN 200万円DOWN!!
DOWN 200万円DOWN!!
物件No.82840 エステムプラザ京都四条烏丸II雅style
- 価格
- 4,180万円
- 返済例 月々
- 円
- 阪急京都線 烏丸駅 徒歩4分
中古マンション
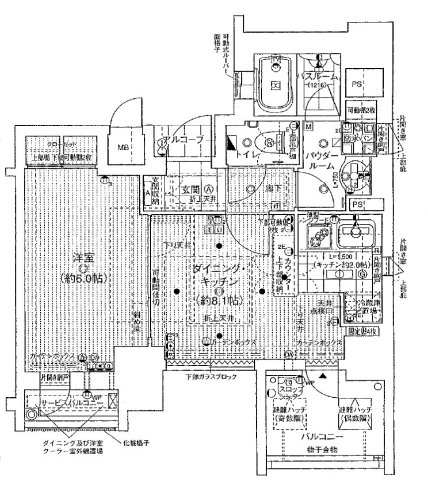
建物面積35.83㎡ 壁心 /間取り1DK
物件概要
| 物件No | 82840 |
|---|---|
| 所在地 | 京都府京都市中京区東洞院通蛸薬師下る元竹田町 |
| 最寄駅 | 阪急京都線 烏丸駅 |
| 小学校区 | 京都市立高倉小学校 |
| 中学校区 | 京都市立京都御池中学校 |
| 交通 | 阪急京都線 烏丸駅 徒歩4分 |
| 物件名 | 京都府京都市中京区東洞院通蛸薬師下る元竹田町中古マンション |
| 駐車場 | 空無 |
| 面積 | 約35.83㎡ 壁心 |
| バルコニー面積 | 4.46㎡ |
| 価格 | 41,800,000円 |
| 管理費 | 7950 |
| 修繕積立金 | 10030 |
| 完成 | 2004年09月 |
| 構造 | RC(鉄筋コンクリート) 地下1階付 11階建 |
| 用途地域 | 商業地域 |
| 取引態様 | 仲介 |
| 現況 | 空家 |
| 引渡し | 相談 |
| 情報更新 | 2026年3月04日 |
周辺物件情報もチェック!
-
物件No.87634 ネバーランド御所南(黒星)フルリノベーション済(黒星)
8,480万円 / 64.76㎡
京都市中京区富小路通二条下る俵屋町
京都市営地下鉄烏丸線 「烏丸御池」駅 徒歩8分物件探しに便利なお気に入り機能は会員登録が必要です。 会員登録はこちら






