- ローンシミュレーション現在の店頭基準金利は2.475%
-
借入期間6580万円/
金利%/年ローン- 毎月返済額
- 円
頭金0円でボーナス払いなしの場合の金額です。
また、お客様のご条件により金利の優遇幅が変動する場合があります。返済例は全額ローン(ボーナス返済0円)、元利金等支払、借入期間35年、変動金利(金利優遇適用後)の0.675%にて計算(現在2020年07月適用)
お気に入り
物件探しに便利なお気に入り機能は会員登録が必要です。
会員登録はこちら
物件No.82757 京都府京都市上京区油小路堀川の間中立売下る突抜町中古一戸建て
- 価格
- 6,580万円
- 返済例 月々
- 円
- 京都市営地下鉄烏丸線 今出川駅 徒歩17分
中古一戸建て
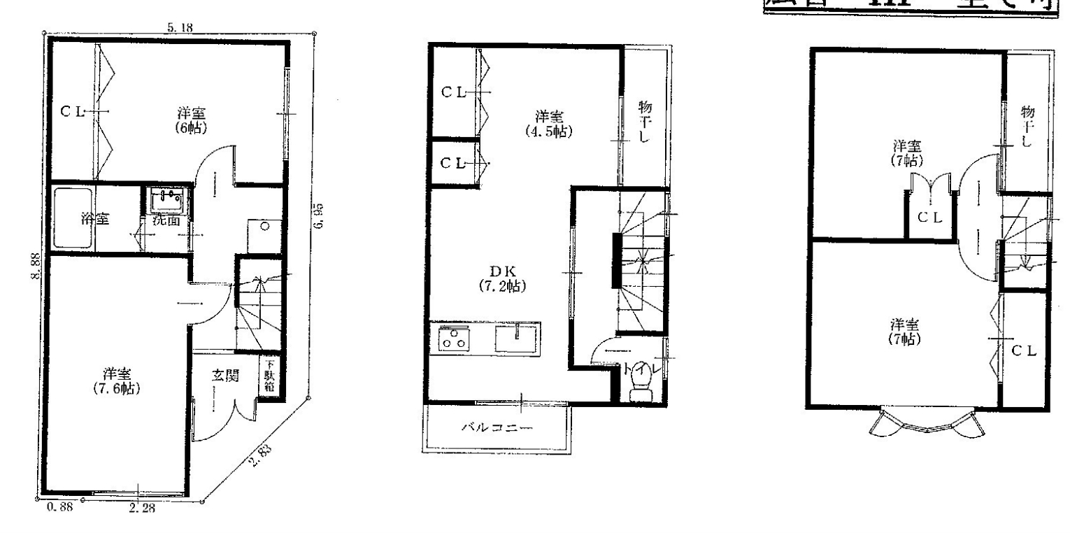
建物面積94.77㎡ /間取り4LDK
物件概要
| 物件No | 82757 |
|---|---|
| 所在地 | 京都府京都市上京区油小路堀川の間中立売下る突抜町 |
| 最寄駅 | 京都市営地下鉄烏丸線 今出川駅 |
| 小学校区 | 京都市立新町小学校 |
| 中学校区 | 京都市立上京中学校 |
| 交通 | 京都市営地下鉄烏丸線 今出川駅 徒歩17分 |
| 物件名 | 京都府京都市上京区油小路堀川の間中立売下る突抜町中古一戸建て |
| 駐車場 | 有 |
| 面積 | 約94.77㎡ |
| 価格 | 65,800,000円 |
| 完成 | 2004年11月 |
| 構造 | 木造 2階建 |
| 用途地域 | 第二種住居地域 |
| 取引態様 | 仲介 |
| 現況 | 空家 |
| 引渡し | 即時 |
| 情報更新 | 2025年10月15日 |






