一乗寺・ハイツ白川
京都・左京区で、自分らしい住まいを描くリノベーションベース
北大路通り至近/南向きバルコニー/74m2超のゆとりある住戸
市バス「一乗寺木ノ本町」停 徒歩1分、叡山電鉄「一乗寺」駅も利用可能な左京区・野田町エリア。
1976年築・全103戸のヴィンテージマンション「ハイツ白川」のご紹介です。
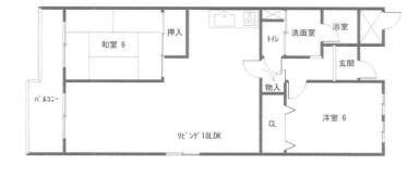
今回の住戸は74.53m2・3LDK相当の広さを持つ、南向きバルコニー付きの4階部分。
さらに角部屋という好条件もそなえ、日当たり・通風ともに良好。
18帖のLDKは、家族の時間にもひとりの時間にもゆとりをもたらしてくれます。
現況では和室と洋室の構成となっていますが、全体的に内装を刷新することで、自分らしい間取り・デザインへと整えていく余地がしっかりとあります。
たとえば、壁を抜いてLDKをさらに広くすることや、書斎スペースを確保するなど、リノベーションを前提に考えるにはちょうどいいボリューム感です。
- ローンシミュレーション現在の店頭基準金利は2.475%
-
借入期間2800万円/
金利%/年ローン- 毎月返済額
- 円
頭金0円でボーナス払いなしの場合の金額です。
また、お客様のご条件により金利の優遇幅が変動する場合があります。返済例は全額ローン(ボーナス返済0円)、元利金等支払、借入期間35年、変動金利(金利優遇適用後)の0.675%にて計算(現在2020年07月適用)
お気に入り
物件探しに便利なお気に入り機能は会員登録が必要です。
会員登録はこちら
物件No.82394 ハイツ白川
- 価格
- 2,800万円
- 返済例 月々
- 円
中古マンション
建物面積74.53㎡ /間取り2LDK
物件概要
| 物件No | 82394 |
|---|---|
| 所在地 | 京都府京都市左京区一乗寺野田町 |
| 最寄駅 | |
| 小学校区 | 京都市立修学院小学校 |
| 中学校区 | 京都市立修学院中学校 |
| 交通 | |
| 物件名 | 京都府京都市左京区一乗寺野田町中古マンション |
| 駐車場 | 空無 |
| 面積 | 約74.53㎡ |
| バルコニー面積 | 8.48㎡ |
| 価格 | 28,000,000円 |
| 管理費 | 10700 |
| 修繕積立金 | 7100 |
| 完成 | 1976年02月 |
| 構造 | RC(鉄筋コンクリート) 9階建 |
| 用途地域 | 第二種住居地域 |
| 取引態様 | 仲介 |
| 現況 | 空家 |
| 引渡し | 相談 |
| 報酬形態 | 分かれ |
| 情報更新 | 2025年10月03日 |






